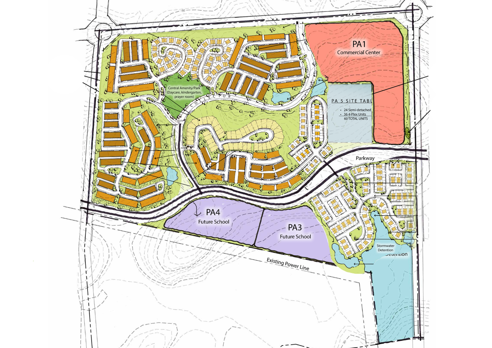
9ac, Mixed-use development, Segambut, Kuala Lumpur
Developer :Genting Property Sdn Bhd
Role :
Manager - Project Planning
Phase involved :
Schematic Design
Design Development
Contract Documentation
Contract Implementation & Administration
Final Completion
Development details :
Type : Mixed-use Commercial
Site : 9ac
Plot ratio: 1:4
GFA : 1,641,780sqftStorey : 38, 5 Blocks
Unit : Varies
Price: Varies
Gross Development Value :
RM 862,400,000
9ac, Mixed-use development, Segambut, Kuala Lumpur
Developer :
Role :
Manager - Project Planning
Phase involved :
Schematic Design
Design Development
Contract Documentation
Contract Implementation & Administration
Final Completion
Development details :
Type : Mixed-use Commercial
Site : 9ac
Plot ratio: 1:4
GFA : 1,641,780sqft
Unit : Varies
Price: Varies
Gross Development Value :
RM 862,400,000

































